【推拉窗配件問題】
外立面的推拉窗需要安裝除了防墜塊和防撞塊之外還需要安裝別的ma ?帶下固定的推拉窗該怎么做好防水工作啊?(外窗)

2016-6-12
一、防盜塊;
二、防水
1、選好合適的配套型材;
2、注意加工尺寸,特別是推拉扇(不能小);
3、注意開好排水孔;
4、做好打膠(尤其拼縫,型材收頭部位,注意先合適的膠,打膠的天氣);
5、選用合適的膠條、毛條;
6、塞縫時注意做好防水
供參考

2016-6-15
1、除了防墜塊(俗稱防盜塊)、防撞塊(俗稱盲撞)外,還需要安裝防風快、碰頭等。
2、①選取內腔內高外地的防水型型材,最好壓線也是外裝的。
②主要排水孔施工技術要點,一定不能銑鉆到內二腔。
③注意開排水孔的同時要開氣壓平衡口,同時氣壓平衡孔與排水孔都要扣上防風工藝帽。
④注意型材組角處、中庭連接處的防水。
⑤選取質量上等的三元乙丙膠條、厚度合適的毛條。
⑥通過實驗選擇合適的密封膠,外墻最好用硅酮密封膠。
⑦窗框一定要通過發泡等于墻體進行柔性連接,防止窗框變形,帶來外墻膠的破裂。
⑧打膠一定要用老師傅,要打實,不要光走面,形成一薄層的膠,這樣過冬夏是受到熱脹冷縮的作用是,很快就破裂了。
其他的他們都說過,我認為窗臺坡水一定要按規范做,外窗框打好防水膠

2016-7-1
防水要求嚴格的話,建議窗邊塞縫,刷防水油

2016-7-21
外立面的推拉窗需要安裝除了防墜塊和防撞塊之外還需要安裝防碰塊,防擺件,還下固定的在下中腰兩端做好金屬粘合劑封堵,兩端注意排水孔打法即可!

最實用的安全措施:外扇固定,只活動內扇;這樣絕不可能會出現脫槽的可能。
防水措施:
一、排水孔必不可少,數量位置高度都要有講究;
二、型材“封口膠”無接縫注入,下固中梃部位的螺絲先注膠再螺緊;
三、下滑清理干凈。

2019-4-30
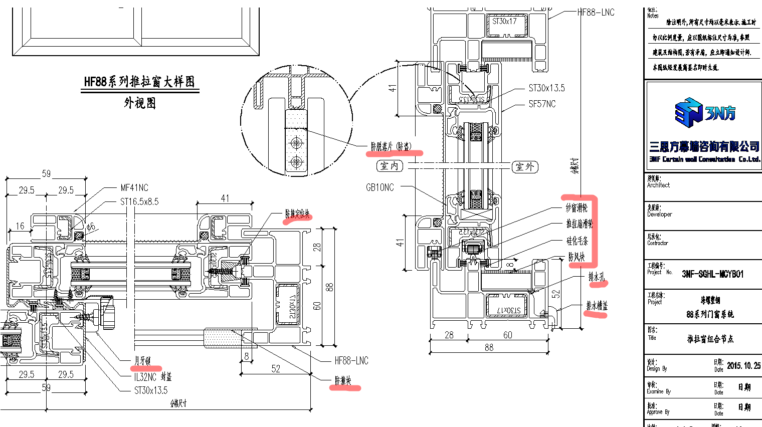
看圖,一目了然
共7條 頁次:[1/1] 首頁 1 尾頁 |